Back

 

74 & 74a Doncaster Road, Goldthorpe, Rotherham, S63 9HU

Residential investment property in Rotherham

Guide price*

£60,000+

Plus fees

Sold for £65,000

Lot information

Lot 133 Residential Investment
Save property

Auction details:

Wednesday 29th July 2020 @ 09:00AM

A Freehold End Terraced Investment Property Current Gross Income: £7,440 pa.

Property Description

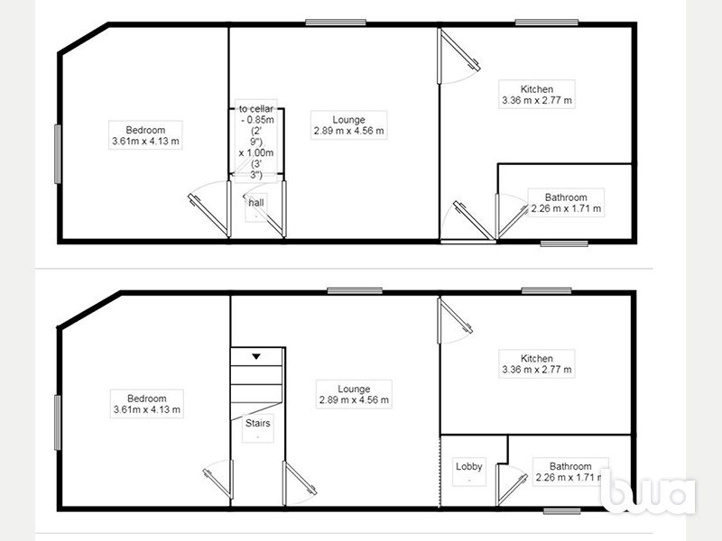
A end terraced property, standing flush to the pavement, which has been converted into two 1 bedroom self-contained flats.

Accommodation

Ground Floor: Lounge, Kitchen, Bathroom, Bedroom and access to Cellar.
First Floor: Lounge, Kitchen, Lobby, Bathroom and Bedroom.

Energy Performance Rating

D & E.

Tenure

Freehold – Subject to the existing tenancies.

Auctioneers Note

Please note offers may be considered prior to the Auction Sale.

Auctioneer's Note

At the time of going to print, the Auctioneers were unable to inspect the property internally and therefore the accommodation details should not be relied upon.
The Auctioneers have not had sight of the tenancy agreement at the time of going to print and the tenancy details should not be relied upon.

Remote Bidding Auction

This property is being offered via a remote bidding auction with bidding by proxy, telephone or internet only. You will need to pre-register for remote bidding, provide your identification and debit card details no later than 24 hours prior to the auction, please visit our website for further details.

Viewings

External viewings only.

Tenancy

Room Term Rental
Ground Floor Flat: Let on an Assured Shorthold Tenancy, at a rental figure of £320 per calendar month - £3,840 per annum.
First Floor Flat: Let on an Assured Shorthold Tenancy, at a rental figure of £300 per calendar month - £3,600 per annum.
Total Gross Income: £620 per calendar month - £7,440 per annum
DISCLAIMER

Bond Wolfe or their Agents for the seller of these Lots give notification that any particulars contained within the catalogue/website are prepared to the best of their knowledge and include information that has been provided to them. Plans, photographs and room measurements (provided via a 3rd party) are provided as guidance only and should not be relied upon. All potential buyers should make their own enquiries and investigations to the accuracy of the information contained in these particulars or to obtain further information that is not provided which they deem to be important prior to bidding. Any amendments to the particulars that Bond Wolfe are aware of will be published on the addendum, which is available within the lot information.

VIEWINGS

Buyers are deemed to have viewed the property (if access is available), viewed the virtual tours where applicable and undertaken all their due diligence checks prior to bidding.

All viewings are undertaken at your own risk. It is recommended that you take a torch, as not all properties have electricity, and that appropriate clothing is worn. Bond Wolfe under no circumstances shall be liable and will not accept any responsibility for any indirect incidental, consequential, special, or exemplary damages, injury and/or death arising in connection with your access to any property, caused as a result of the property’s state of repair or your use/decision to use your own equipment or any furniture, equipment or appliances in the property.

LIVE-STREAMED AUCTION

Please note that the Auction will be livestreamed via our website.  You can take part remotely via Proxy, Telephone or Online, if you wish to bid you must pre-register via our website no later than 3pm the day prior to the auction. Please click here for further details.

*DEFINITION OF GUIDE & RESERVE PRICE

All properties are sold subject to a reserve price, which is the minimum price the seller is willing to accept and is confidential between the seller and Auctioneer. The guide price is only an indication as to where the reserve is currently set and not necessarily the Auctioneers expectation of what it will sell for. If the guide price is a bracket figure, then the reserve price cannot be higher than the top end of the guide price, if the guide price is a fixed figure, then the reserve cannot be more than 10% above the guide price. The guide price and reserve price can be subject to change at any time up to and including the auction day and, properties can often sell for substantially more than the quoted guide price.

COSTS AT AUCTION

When buying at auction you will unconditionally exchange contracts on the fall of the auctioneer’s gavel, please therefore ensure you have read the legal pack for each property prior to bidding.  They are all individual and include the terms and conditions of your purchase as well as any costs in addition to the purchase price.

The sale of each lot is subject to an administration fee of £2,700 inc VAT (£2,250 + VAT) (unless otherwise stated in the important information), payable on the fall of the gavel/at the end of the online auction.  Please note that the administration fee for the Local Authority lots may differ and all interested parties should enquire directly with the Auctioneers as to the fee applicable.

Any additional costs excluding the administration fee will be listed in the Special Conditions within the legal pack and these costs will be payable on completion. The legal pack has been prepared by the seller’s solicitor(s), who are responsible for its contents and disclosing all know information. It is available to download free of charge under the ‘lot information’, and you take responsibility for reading and understanding the legal pack and are bound by all the contents. Any stamp duty and/or government taxes are not included within the Special Conditions within the legal pack and all potential buyers must make their own investigations.

Register to bid for our next auction