Back

 

2-10 Crawshaw Close, Long Whatton, Loughborough, LE12 5DR

A portfolio of 5 self contained houses in Long Whatton

Guide price*

£125,000+

Plus fees

Lot information

Pound sign

Looking for finance on this property?

Find out more
Mail icon

Enquire about this property

Lot 91 Residential Vacant
Save property

Auction details:

Wednesday 10th December 2025 @ 08:30AM

A portfolio of 5 separate freehold vacant properties

Property Description

A portfolio of 5 separate self contained properties comprising 2 semi detached, 1 end terraced and 2 mid terraced bungalows. All of the properties are set back from the road with their own front gardens and driveways. Built in 1996 as a rural exception site. The properties are being sold subject to a restrictive S106 planning consent for affordable housing.

Accommodation

2 Crashaw Close: Semi Detached Property
Ground Floor: Hall, Reception Room, Dining/ Kitchen
First Floor: Landing, Two Bedrooms, Bathroom/ WC
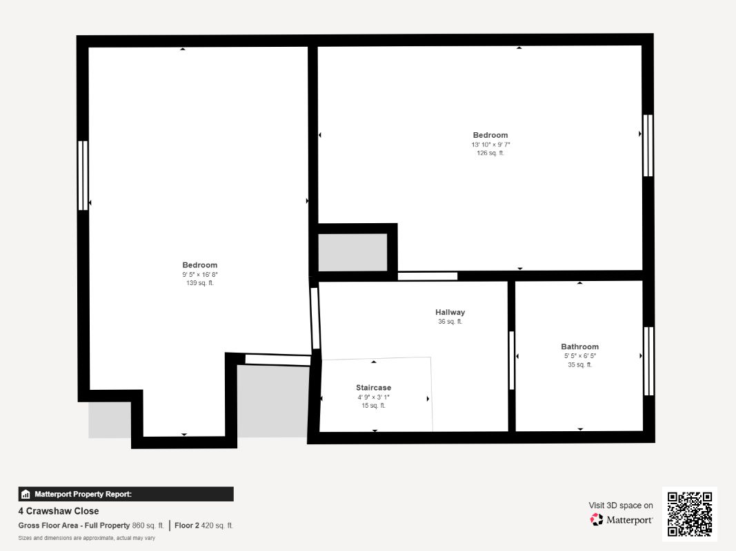
4 Crashaw Close: Semi Detached Property
Ground Floor: Hall, Reception Room, Dining/ Kitchen
First Floor: Landing, Two Bedrooms, Bathroom/ WC
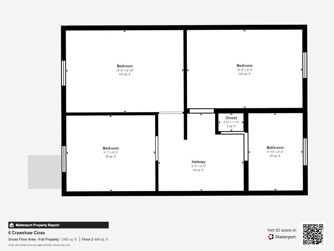
6 Crashaw Close: End Terraced Property
Ground Floor: Hall with WC off, Reception Room, Dining/ Kitchen
First Floor: Landing, Three Bedrooms, Bathroom/ WC
8 Crawshaw Close: Mid Terraced Bungalow
Ground Floor: Hall, Reception Room, Kitchen, Two Bedrooms, Bathroom/ WC
10 Crashaw Close Mid Terraced Bungalow
Ground Floor: Hall, Reception Room, Kitchen, Two Bedrooms, Bathroom/ WC
All of the properties benefit from double glazing, 2-8 benefit air source heat pump heating system, which have been attached higher on rear walls to avoid any potential water ingress to the systems. Number 10 benefits from Electric Storage Heating.

Energy Performance Rating

Number 2 and 6: C
Number 4, 8 and 10: D

Council Tax Band

Number 2, 4 and 6: B
Number 8 and 10: A

Tenure

Freehold – Vacant possession upon completion.

Auctioneer's Note

We understand the properties are sold subject to a restrictive Section 106 planning consent for affordable housing. See legal pack for details as it is essential that interested buyers are fully aware of these lettings and rental restrictions.
We understand that the properties have been subject to flood damage in the past, most recently January 2025. However, we are aware that the County Council have undertaken highway drainage improvements in September 2025 in an attempt to alleviate this. Details of the Council works are also in the legal pack.

Pre-auction Offers

Please note no offers will be considered prior to the Auction Sale.

Viewings

See viewing schedule. Please note the appointments listed below are pre-booked and there is no need to book in prior to attending.
Wednesday 26th Nov 2025 14:15-14:30
Monday 1st Dec 2025 10:00-10:15
Wednesday 3rd Dec 2025 14:15-14:30
Monday 8th Dec 2025 10:00-10:15
DISCLAIMER

Bond Wolfe or their Agents for the seller of these Lots give notification that any particulars contained within the catalogue/website are prepared to the best of their knowledge and include information that has been provided to them. Plans, photographs and room measurements (provided via a 3rd party) are provided as guidance only and should not be relied upon. All potential buyers should make their own enquiries and investigations to the accuracy of the information contained in these particulars or to obtain further information that is not provided which they deem to be important prior to bidding. Any amendments to the particulars that Bond Wolfe are aware of will be published on the addendum, which is available within the lot information.

VIEWINGS

Buyers are deemed to have viewed the property (if access is available), viewed the virtual tours where applicable and undertaken all their due diligence checks prior to bidding.

All viewings are undertaken at your own risk. It is recommended that you take a torch, as not all properties have electricity, and that appropriate clothing is worn. Bond Wolfe under no circumstances shall be liable and will not accept any responsibility for any indirect incidental, consequential, special, or exemplary damages, injury and/or death arising in connection with your access to any property, caused as a result of the property’s state of repair or your use/decision to use your own equipment or any furniture, equipment or appliances in the property.

LIVE-STREAMED AUCTION

Please note that the Auction will be livestreamed via our website.  You can take part remotely via Proxy, Telephone or Online, if you wish to bid you must pre-register via our website no later than 3pm the day prior to the auction. Please click here for further details.

*DEFINITION OF GUIDE & RESERVE PRICE

All properties are sold subject to a reserve price, which is the minimum price the seller is willing to accept and is confidential between the seller and Auctioneer. The guide price is only an indication as to where the reserve is currently set and not necessarily the Auctioneers expectation of what it will sell for. If the guide price is a bracket figure, then the reserve price cannot be higher than the top end of the guide price, if the guide price is a fixed figure, then the reserve cannot be more than 10% above the guide price. The guide price and reserve price can be subject to change at any time up to and including the auction day and, properties can often sell for substantially more than the quoted guide price.

COSTS AT AUCTION

When buying at auction you will unconditionally exchange contracts on the fall of the auctioneer’s gavel, please therefore ensure you have read the legal pack for each property prior to bidding.  They are all individual and include the terms and conditions of your purchase as well as any costs in addition to the purchase price.

The sale of each lot is subject to an administration fee of £2,340 inc VAT (£1,950.00 + VAT) (unless otherwise stated in the important information), payable on the fall of the gavel/at the end of the online auction.  Please note that the administration fee for the Local Authority lots may differ and all interested parties should enquire directly with the Auctioneers as to the fee applicable.

Any additional costs excluding the administration fee will be listed in the Special Conditions within the legal pack and these costs will be payable on completion. The legal pack has been prepared by the seller’s solicitor(s), who are responsible for its contents and disclosing all know information. It is available to download free of charge under the ‘lot information’, and you take responsibility for reading and understanding the legal pack and are bound by all the contents. Any stamp duty and/or government taxes are not included within the Special Conditions within the legal pack and all potential buyers must make their own investigations.

Register to bid for our next auction